着工50日目の話しが少し続きます。
アクアフォームだけでなく、天井の断熱材の敷き込みと天井ボード貼りまで進んでいたのですが、ちょっと気になる所がありましたので、アコルデの鈴木さんに見てもらいました。
この写真の鈴木さんが手を伸ばしているところは、二階の寝室のクローゼットの上にあたる部分です。
グラスウールの上にある空間は、屋根裏にあたるのですが、このままでは断熱欠損になってしまうことに気がつきました。
これが、どうゆうことかを説明していきます。
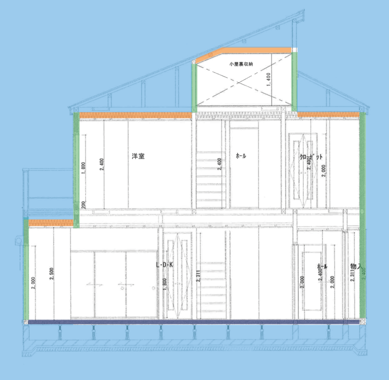
まず、我が家の断熱構造は、
壁断熱:アクアフォーム80mm
天井断熱:アクリア 高性能グラスウール 155mm
床下断熱:ミラフォーム 65mm
という仕様です。
色が付いている部分が断熱材でして、
グリーン:アクアフォーム
オレンジ:アクリア
ブルー:ミラフォーム
です。
これらが、居住空間を取り囲んでいますので、例えば冬の場合ですと、
こんな感じで、冷気が入ってくれるのを防いでくれます。
この図を見ると分かるのですが、天井断熱の場合は、屋根と天井の間にある屋根裏部分は外気が通る部分と考えておく必要があります。
しかし、実は二階の寝室のクローゼット上は、天井が低くなっているのです!!!
問題は、この図の○を付けた部分です。冒頭の写真はまさにこの○を付けた部分です。
二階の左側の部屋が寝室なのですが、クローゼットの上が段差になってアクリアの施工も一段下がることになるのです。
この状態で、もう一度冷気がどうなるかを見てみますと、、、、
屋根裏空間に入った冷気が、見事にこの隙間から入ってくることになるんですね〜。
実際は、ボードも貼られますし、直接隙間風が入ってくるようなことはないのですが、このままだと断熱欠損になってしまうのは間違いありません。
恐らく、ボードを貼る前にちゃんと塞いでくれる予定だったとは思うのですが、念のため鈴木さんに隙間を詰めておくようにお願いしておきました。
我が家の場合、小屋裏収納があることも原因だと思いますが、まさかこんな場所から断熱欠損になる可能性があるとは想いもよりませんでした。
向こう側が直接外という訳ではないので、少し油断してしまいますね。
- みんなのWeb内覧会
- WEB内覧会<総合>
- WEB内覧会*玄関
- WEB内覧会*キッチン
- WEB内覧会*洗面所
- WEB内覧会*お風呂
- WEB内覧会*トイレ
- WEB内覧会*階段
- WEB内覧会*ダイニング
- WEB内覧会*リビング
- WEB内覧会<和室>
- WEB内覧会*寝室
- WEB内覧会*子供部屋
- WEB内覧会*書斎
- WEB内覧会*ワークスペース
- WEB内覧会*外構
- ローコスト住宅等の情報&住宅巡り
- 魅力ある家づくり...
- 家づくりを楽しもう!
- いえづくりのこだわり
- 新築・リフォームの間取りアイデア
- 家づくり
- 新築一戸建て
- マイホームブログ
- 住まいと暮らし
- マイホーム、我が家
- DIYブログコミュニティ
- 庭・外構・エクステリア・リフォーム












コメント