突然再浮上した土地への方針転換となった激動の一日も終わり、迎えた翌日は本来7区画分譲地の契約を予定していた日でした。
この日は、朝から妻と二人で「すごいことが起きたねぇ」と、言いながら喜びをかみしめていました。
子供にも、「機嫌がいいね!」と見抜かれるほどでしたので、相当ニヤニヤしていたと思いますw
確か、その勢いで外食に行ったような行ってないような・・・(汗)
さすがに忘れました(笑)
土地の契約は、翌日の3月19日(月)、アチチホームとの打ち合わせを翌々日の3月20日(祝)にしたので、この日はちょっと余裕が出来ました。
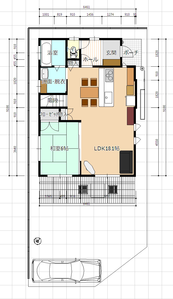
前日、7区画分譲の間取りを左右反転するだけで、うまくはまったと書きましたが、建物の配置計画をまだ悩んでいました。
最初の案では、駐車場を北側に配置して南側を全て庭にする配置計画でしたが、これは主に強い妻の希望があったためです。玄関からの出入りの際に、できるだけぬれずに車に出入りしたいということでした。
この時住んでいた、借家では、玄関ポーチの横にちょうど車の運転席のドアがくるように駐車できていたので、非常に便利に乗り降りしていたためです。
しかし、この配置だと土地スペースの無駄が多い気がします。
北側の駐車場は、北側隣家のフェンスと我が家の壁に挟まれるため、出入りに余裕を持たせようとすると約3mは幅が必要です。
そうすると駐車場の西側にスペースができて、ここに倉庫を置いたりできそうなのは魅力ですが、できればスペースは片方にまとめたい気持ちでした。
7区画分譲の時は、道路脇に駐車場を配置する計画だったのですが、道路側にフェンスを付けなければ2.2mぐらいの幅を取れば、我が家の車は充分止められます。
この理屈で、南道路側に駐車場を配置した案がこちら。
こちらの方が、庭スペースがより広く長方形に取れて良いかなと思います。
道路からも、より建物が離れるので目線も気にならない良いアイディアだと思ったのですが・・・
妻には玄関から車までが遠く、傘をさすのがヤダと言われてしまいました。
道路脇なので車へのいたずらなども心配なようです。まぁ確かに。
トホホ・・・
- みんなのWeb内覧会
- WEB内覧会<総合>
- WEB内覧会*玄関
- WEB内覧会*キッチン
- WEB内覧会*洗面所
- WEB内覧会*お風呂
- WEB内覧会*トイレ
- WEB内覧会*階段
- WEB内覧会*ダイニング
- WEB内覧会*リビング
- WEB内覧会<和室>
- WEB内覧会*寝室
- WEB内覧会*子供部屋
- WEB内覧会*書斎
- WEB内覧会*ワークスペース
- WEB内覧会*外構
- ローコスト住宅等の情報&住宅巡り
- 魅力ある家づくり...
- 家づくりを楽しもう!
- いえづくりのこだわり
- 新築・リフォームの間取りアイデア
- 家づくり
- 新築一戸建て
- マイホームブログ
- 住まいと暮らし
- マイホーム、我が家
- DIYブログコミュニティ
- 庭・外構・エクステリア・リフォーム











コメント