最終プラン-実施承認図

間取り

AIがつくる間取りは使えるのか

仕事でもプライベートでも、生成AIの能力の向上を日々痛感させられていますが、そろそろAIが土地や希望にあわせて間取りを作り出してもおかしくないのではないかと思っていたら、既にそのような取組が始まっていました。早速少し試してみましたので、紹介...
間取り

生成AIで間取りを探してみた

我が家が家づくりをした当時は、情報収集のためにかなりGoogleを活用しました。参考になる間取りや規格住宅の間取りを探すために、Googleの画像検索もかなり重宝して利用したのですが、今使ってみると、なんとなく当時とは検索結果が異なる印象で...
設備選び

自分で住設プランが作れるPanasonicのサービス

これからPanasonicの水回りや収納・建具などを検討する人には、とても便利かもしれないサービスを知ったのでご紹介します。ひょっとしたら、Panasonicの住設を利用された方には常識なのかもしれませんが...自宅で水回りのオプションの熟...
最終プラン-実施承認図

[実施承認図] 照明最終プランと追加見積


奇跡の間取り

[実施承認図] 二階図面と窓のクルクル [最終版間取り]

この段階に来ると、持ち込みの家具の寸法まで記入してもらっているのですが、自分で測った家具の寸法が本当に合っているのかどうか、何度も確かめました。タンスストリートの奥に、洗濯機を置く事になっているのですが、これを考慮してアコルデの岡本社長が一つ提案ししてくれた内容も反映されています。
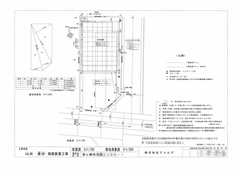
奇跡の間取り

[実施承認図] 配置図と一階平面図 [最終版間取り]

この段階に来ると、持ち込みの家具の寸法まで記入してもらっているのですが、自分で測った家具の寸法が本当に合っているのかどうか、何度も確かめました。タンスストリートの奥に、洗濯機を置く事になっているのですが、これを考慮してアコルデの岡本社長が一つ提案ししてくれた内容も反映されています。
最終プラン-実施承認図

[実施承認図] 水まわり仕様一挙公開