今日はアコルデの完成見学会2日目ですよー♪
速報レポートを見て、ご興味をもたれた方は是非現地に行かれてくださいね♪
さて、DMMソーラーに必要と言われた、屋根伏図と一緒に矩計図という図面をアコルデに請求してみました。
矩計図は、太陽光の検討に必要な訳ではないのですが、見てみたいと思っていた図面です。
後でもらえたのかもしれませんが、興味があったので早く見てみたかったのです(^^;
屋根伏図はまだ出来ていなかったのですが、矩計図はすぐに清水畑さんがメールで送ってくださいました。
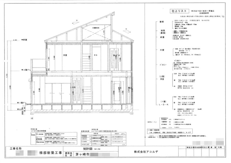
こちらが我が家の矩計図です。
おぉ〜。
これから建つ我が家を半分にぶった切った感じがとても新鮮ですwww
それを知ってどうするという感じなのですが、一階の床から二階の床までの高さから3005mmなんですね。
一階天井が2500mmなので、約500mmの一階天井厚があるのだというのがわかります。
また、これを見るまで認識していなかったのですが、一階リビングなどの居室の天井高は2500mmなのですが、玄関ホールは2400mmになっていました。
不思議ですねぇ。特にこだわりはなかったので、問題はないのですが、なぜわざわざ天井高を変えるのでしょうねぇ。
ちょっとでも、コストダウンになるんでしょうか?
ご存知の方がいらっしゃったら教えてください(^^)
断面図としてわかりやすかったのは、小屋裏収納の取り方です。
この図は、金庫の回に先に出ているので、見覚えあるかもしれません(^^;
小屋裏収納は、1.4mまでの天井高と決まっているのですが、これを見ると天井の上の空きが結構あるのでもったいないなぁと思ってしまいましたwww
あと、南(左)側にもまだスペースを延ばす余地もありそうだなと欲張る気持ちがムクムク湧きます(笑)
矩計図には、細かな仕上がり仕様も記述されています。
これが我が家の仕上げ仕様です。
限られた予算の中で、しっかりした建材を選んでいただいていると満足しています。
我が家は、エコポイントを取得していただいたのですが、住宅事業建築主の判断の基準(通称 トップランナー基準) をクリアさせる仕様となっています。
トップランナー仕様って、断熱性能だけでなく、照明器具にもクリア基準があるんですね。
断熱仕様ですが、我が家の場合神奈川なので断熱区分のIV地域の仕様になっているはずです。
天井断熱材:高性能グラスウールは、アクリアマット 14k 155mm
壁断熱材:硬質ウレタンフォームA種3は、アクアフォーム 80mm
床下断熱材:A種押出法ポリスチレンフォーム保温板3種は、ミラフォーム 65mm
の、熱貫流率を記しているようです。
が・・・正直よくわからんwww
とりあえず、数字がクリアしていることだけは確認しました。
アコルデさんを信用していないわけではなくて、あくまで興味本位での確認ですwww
当初は、建売りでさえ買えるかどうかどうかわからなかった身分で、こんなしっかりしたお家を建ててもらえるのだと喜びをかみしめているのでした。
建築会社によっては、矩計図を作らない所もあると聞いたのですが、気になる方は確認してみてくださいね。
- みんなのWeb内覧会
- WEB内覧会<総合>
- WEB内覧会*玄関
- WEB内覧会*キッチン
- WEB内覧会*洗面所
- WEB内覧会*お風呂
- WEB内覧会*トイレ
- WEB内覧会*階段
- WEB内覧会*ダイニング
- WEB内覧会*リビング
- WEB内覧会<和室>
- WEB内覧会*寝室
- WEB内覧会*子供部屋
- WEB内覧会*書斎
- WEB内覧会*ワークスペース
- WEB内覧会*外構
- ローコスト住宅等の情報&住宅巡り
- 魅力ある家づくり...
- 家づくりを楽しもう!
- いえづくりのこだわり
- 新築・リフォームの間取りアイデア
- 家づくり
- 新築一戸建て
- マイホームブログ
- 住まいと暮らし
- マイホーム、我が家
- DIYブログコミュニティ
- 庭・外構・エクステリア・リフォーム













コメント
SECRET: 0
PASS: 74be16979710d4c4e7c6647856088456
我が家もDMMソーラーに申し込みましたがお断りされました。
かながわソーラーセンターもDMMソーラーを紹介してましたね!
SECRET: 0
PASS: 74be16979710d4c4e7c6647856088456
コメントありがとうございます。
DMMソーラー申込されたんですね!
条件にあわないと断られることがあるというのは、話題になっていましたね。
屋根のサイズや方角のこともあると思うのですが、グリッド社のパネルとの相性もあるような気がしました。